$1,050,000
3620 45th Avenue SW
Sold
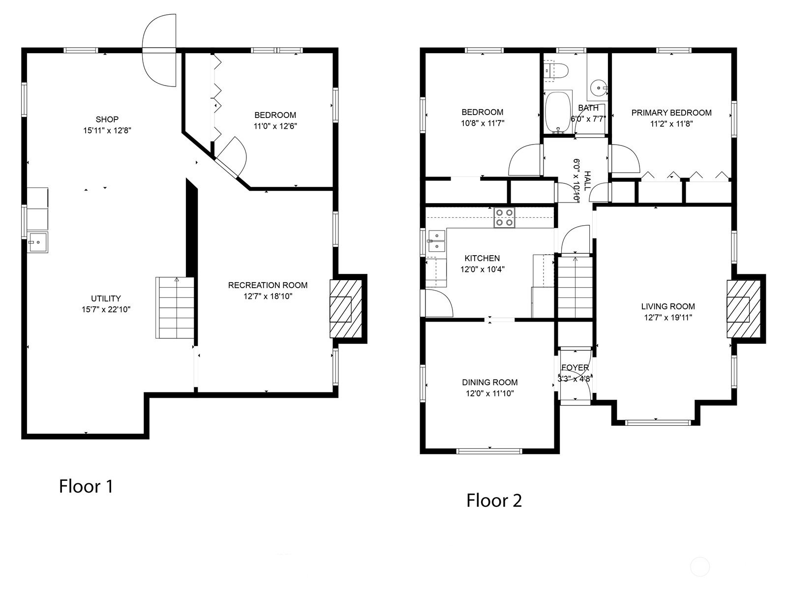
Features & amenities
- Ceramic Tile
- Concrete
- Dining Room
- Fireplace
- Hardwood
- Water Heater
- Curbs
- Fenced-Fully
- Patio
- Paved
- Sidewalk
- Sprinkler System
Additional details
- MLS® # 2144457
- Type Residential
- Subtype Residential
Listing is presented by
Your Advisor, Your Advocate, Your Advantage
YourSeattleHomeTeam.com